🏠 Galpón industrial metálico
Ubicación: Chubut
Servicio: Diseño y cálculo estructural
Tipo: Estructura metálica a dos aguas con pórticos de alma llena
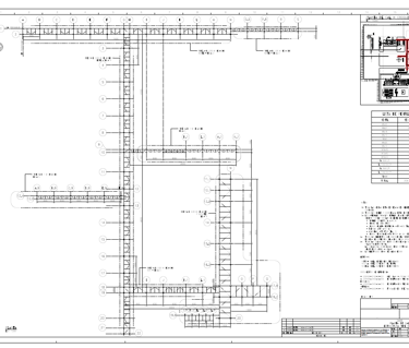
🛠️ Refuerzo y ampliación de torre existente
Ubicación: Puerto Madryn
Servicio: Refuerzo estructural + documentación
Tipo: Ampliación de torre metálica
🌉 Infraestructura desagües pluviales
Ubicación: Guatimozín
Servicio: Documentación
Tipo: Ampliación de cordón cuneta
🌉 Infraestructura desagües pluviales e industriales y caminos
Ubicación: Australia
Servicio: Documentación de planos de infraestructura planta de cemento
Tipo: Ingeniería para construcción
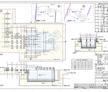
🌊Pozas de evaporación
Ubicación: Salta
Servicio: Documentación y modelados en Civil 3D
Tipo: Ingeniería para construcción
🌊Pileta de distribución salmuera
Ubicación: Salta
Servicio: Documentación para de forma
Tipo: Ingeniería para licitación
🔩Pipe Racks
Ubicación: Salta
Servicio: Diseño y cálculo de fundaciones y estructura metálica
Tipo: Ingeniería para licitación
🏢 Edificios residenciales
Ubicación: Rosario
Servicio: Cálculo de estructura en hormigón armado
Tipo: Vivienda multifamiliar sobre lote urbano














Innovación aplicada en Ingeniería Civil y Estructural
En Innova diseñamos soluciones de ingeniería civil y estructural para proyectos industriales, basadas en el análisis técnico de estructuras reales y en los requerimientos específicos de cada operación.





Proyectos de ingeniería estructural aplicados
Estructuras industriales, infraestructura y obras existentes, desarrolladas a partir del análisis técnico de condiciones reales y requerimientos operativos.
La ingeniería se define por el proceso técnico, no solo por el resultado final.
Eugenia Gambandé
Ingeniera Civil · Diseño estructural





